- Kopējā platība 92,2 m2
- Terase 10,2 m2
- Plašs pagalms
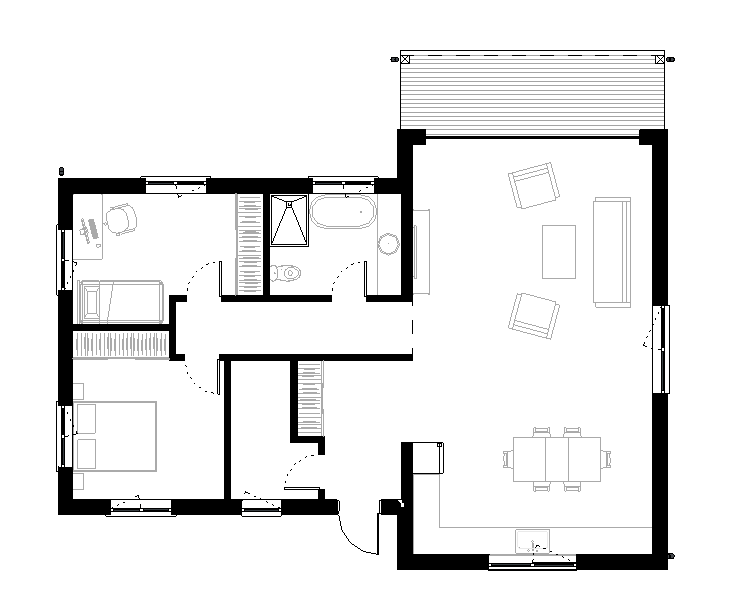
Plaša, gaiša un moderna ģimenes māja ar autostāvvietu un skaistu pagalmu. Mājas centrā ir liela viesistaba, kura ir apvienota ar virtuvi. No viesistabas ir divas izejas uz guļamistabām. Vienā mājas pusē ir divas guļamistabas, vannasistaba un saimniecības telpa, otrā pusē ir istaba kuru var izmantot kā mājas darba istabu, vai vēl vienu guļamistabu un “master” guļamistaba ar iebūvētu skapi un privāta un plaša vannasistaba.
Mājas priekšpusē ir stāvvieta vairākiem transportlīdzekļiem.
Mājas aizmugurē ir liela saulaina terase, kas piedāvā brīnišķīgu brīvdabas telpu.
Projekts pieejams spoguļattēlā
Mēs nodrošina interjera dizainu.















