![]() |
Viesistaba apvienota ar virtuvi |
![]() |
4 Guļamistabas |
![]() |
2 Vannas istabas |
![]() |
Vieta vairākām automašīnām |
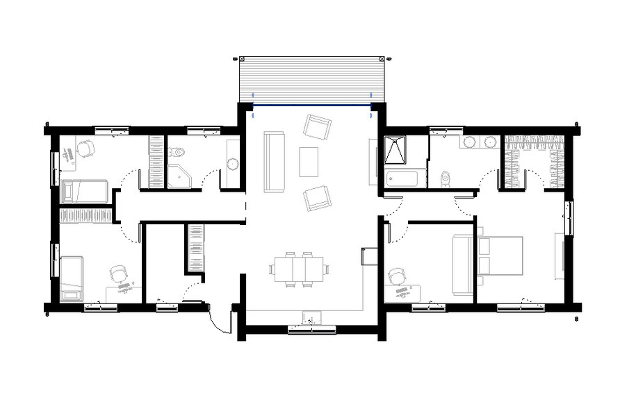
- Kopējā platība 140m2
- Terase 12m2
- Plašs pagalms
Plaša, gaiša un moderna ģimenes māja ar autostāvvietu un skaistu pagalmu. Mājas centrā ir liela viesistaba, kura ir apvienota ar virtuvi. No viesistabas ir divas izejas uz guļamistabām. Vienā mājas pusē ir divas guļamistabas, vannas istaba un saimniecības telpa, otrā pusē ir istaba, kuru var izmantot kā mājas darba istabu, vai vēl vienu guļamistabu, un “master” guļamistaba ar iebūvētu skapi un privātu un plašu vannasistabu.
Mājas priekšpusē ir stāvvieta vairākiem transporta līdzekļiem.
Mājas sētas pusē ir liela saulaina terase, kas piedāvā brīnišķīgu brīvdabas telpu.
Būvniecībā izmantoti tikai premium klases būvmateriāli, kas nodrošina labu siltuma izolāciju ziemā.
Pieejams arī projekta apakštips ar palielinātu platību.
Projekts pieejams spoguļattēlā.
Mēs nodrošina interjera dizainu.

















